Pas d'informations disponibles
Situé dans une copropriété de seulement 3 logements, cet appartement de type duplex, en rez-de-chaussée surélevé, développe environ 100 m² habitables et offre un cadre de vie spacieux, lumineux et évolutif.
Vous aimerez :
Une pièce de vie lumineuse, ouverte à l’ouest sur un balcon avec vue sur le jardin,
Une cuisine prolongée par une terrasse ensoleillée orientée sud, idéale pour les repas en extérieur,
Un espace bureau, une chambre et une salle de bain au niveau principal,
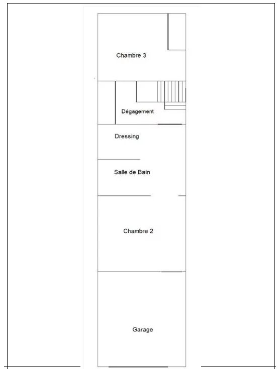
Deux chambres supplémentaires en rez-de-jardin, dont une suite parentale avec dressing et salle de bain,
Un terrain privatif de 480 m², entièrement clôturé, piscinable, avec garage et abri pour deux véhicules,
Un système de climatisation réversible pour plus de confort toute l’année.
Quelques travaux de rafraîchissement sont à prévoir, offrant l’opportunité de personnaliser l’ensemble à votre goût.
Situation pratique : accès direct aux principaux axes routiers (dont l’autoroute), à proximité des commerces, écoles et commodités.
Que vous cherchiez une résidence principale avec extérieur ou un investissement locatif, ce bien offre de nombreuses possibilités.
Prenez rendez-vous pour une visite et bénéficiez d’un accompagnement personnalisé jusqu’au bout de votre projet.
Vous en avez assez de rater une opportunité parce que vous n’êtes pas sur les sites d’annonces 24h/24? Avec nous, prenez le temps de visiter et de vous positionner sereinement !
VENTE INTERACTIVE À PRIX PROGRESSIF sur la plateforme WinUp Immo
Date de clôture des offres : le 24 juillet 2025 à 19h00
Prix de départ : 275 000 € (honoraires inclus)
Paliers d’enchère : 5 500 €
Une offre en ligne ne vaut pas offre ferme au sens de l’article 1114 du Code civil. Il s’agit d’une simple intention d’achat.
Plus d’infos sur : WinUp Immo
Cliquez ici pour que le Conseiller en charge de ce bien prenne rapidement contact avec vous.
Ce site est protégé par reCAPTCHA et les règles de confidentialité et les conditions d'utilisation de Google s'appliquent.